|
|
|
AVC
KUNST EFTERÅRS UDSTILLING
15 august 2026
|
 |
Dagens indhold
13.00
Udstillingen åbner
i OPLEVELSESSTUDIET ( HAL B )
UDSTILLERE:
AKVAREL,
ACRYL, OLIE,
TEGNING, GLAS,
SKULPTUR,
KERAMIK, RAKU,
SMYKKER,
TRÆ,
STEN,
METAL,
TEXTIL, DIVERSE
13.10
Efterårsudstilling
Din egen udstilling I
KUNSTHALLEN
14.00
Foredrag
af kunstkrittiker
som fortæller- og
viser billeder
fra de mest spændende udstillinger i 2027.
Foredraget sendes også på TV
www.TVAVC.DK
15.00 Arbejdende kunstner
9 arbejdende kunstnere skaber et værk med temaet
FORÅR 16.00 Optræden fra scenen
Musik & sang fra scenen
Årets bedste kunstværk
som udstilles på AVCkunst.dk
Præmie overrækkes af borgmester i Favrskov.
( Kunstner skal være tilstede -
ellers vælges nr. 2 )

Lokal kontakt TELF. 20 713400
Bestil stand nr:
PRIS:
120,00 pr. emne du udstiller
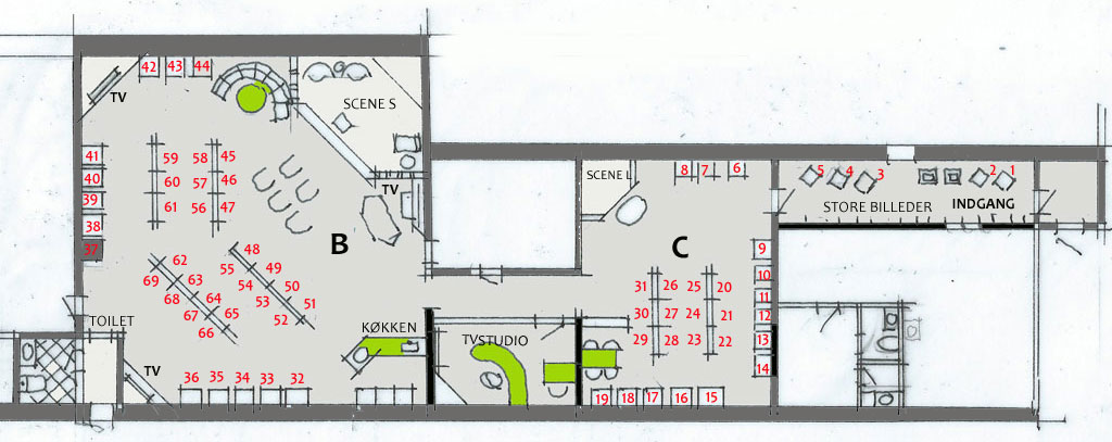
Oplys din ønskede stand nr. ( mellem 1 - 69 )
( seneste tilmelding 14 dage før udstillingen) Telefon
20 713400 mellem 9-16.00
mail:
info@AVCnet.dk
BEMÆRK AT STANDENE FØRST ER BESTILT, NÅR STANDLEJE ER
BETALT
Du modtager bekræftelse
BETALING: MobilePay 2071340
eller:
SPAREKASSEN KRONJYLLAND, HADSTEN
KONTO. 9326 REG.3265670694 |
PLAN OVER STANDE

|
|
|
|
|
|
|
|
|
|
|